Genişleyen güvenilir yapılar
Bursa’nın sanayi ve konut yapılarına attıkları güvenilir imza ile adından söz ettiren Akfem Yapı, Ovaakça’daki Akova Evleri projesind yeni bir halka daha ekliyor.
KONUT PROJELERİ 21.09.2023, 11:59
Akova Evleri 2.Etap projesi, Ovaakça’nın en gözde projelerinden biri olurken güvenli yapılarda konforlu yaşam sürmek isteyen sakinler, Akfem Yapı’yı tercih ediyor.
Bursa’nın İstanbul Yolu üzerinde yer alan Ovaakça’da iki binadan oluşan Akova Evleri 2 Etap projesi, farklı metrekarelerdeki daire planlarıyla her konut tüketicisinin bütçesine hitap ediyor.
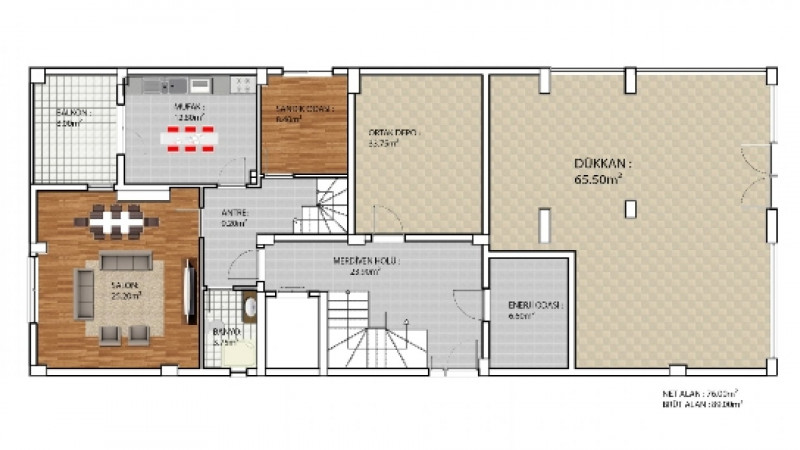
Dükkân ve depo alanlarının da yer aldığı projede otopark alanı da bulunuyor. 73 m2, 81 m2 ve 61 m2 net alana sahip kat planlarıyla kentin en güzel yerlerinden birinde konut sahibi olabilirsiniz.
Proje Adı: Akova Evleri 2.Etap - Ovaakça
Proje firması: Akfem Yapı
İletişim: info@akfem.com –0 532 578 59 37




Yorum yapabilmek için lütfen üye girişi yapınız!

